YJ Pocha

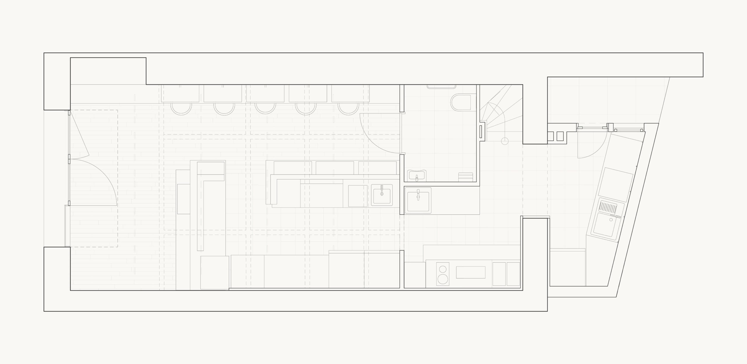
Niché au cœur du quartier historique des Antiquaires à Grenoble, l’enjeu est double pour cette petite échoppe de street-food coréenne. Dans un premier temps, comprendre le bâti existant, sa rue, son quartier, la ville toute entière, puis insuffler le souffle de liberté et d’extravagance propre à la culture séoulite. L’esprit profondément domestique de l’échoppe émane du lieu dont les environs sont redevenus piéton récemment, secteur aussi calme et familial de jour qu’animé et joviale en soirée. Le local a été déshabillé pour aller chercher la plus pure expression constructive du bâtit dans lequel il prend place.

Ici, la couleur est une entité dynamique : elle révèle autant qu’elle dissimule. Au fil du jour et de la nuit, le lieu se métamorphose, entre un temps diurne clair et calme, et une ambiance nocturne qui appelle au mystère. La lumière du jour, légère, dévoile la texture du bois, la trace du geste artisanal, tandis que la couleur du soir, dense, enveloppe l’espace d’une dimension surréelle, presque rêvée.

Du geste de l’artisan à la maîtrise de la texture, tout ici tente la recherche d’un équilibre : révéler sans figer et sublimer sans totalement masquer. Le projet est celui d’un croisement, entre cultures, mais aussi entre art culinaire et architecture. La lumière, changeante, sculpte le lieu et son atmosphère : elle fait le pont entre le présent et le lointain, entre les après-midi familliales d’un café Grenoblois et les nuits éblouissantes d’un marché séoulite.

commande
Privée
projet
restaurant de street-food coréenne
mission
mission complète de maitrise d'œuvre, design de mobilier
localisation
Grenoble (FR)
surface
45+25 m²
coût
100k€ HT (dont cuisine)
année
2024
équipe projet
Maud Laronze architecte + HIE (CHR)
crédits photographies
Guillaume Langlais

Voir les plans