Montsouris

Au point culminant de l’avenue Reille, dans le 14e arrondissement de Paris, un immeuble typiquement Haussmannien s’offre au parc Montsouris. L’appartement prend place au 5eme étage et dans le couronnement de l’immeuble, s’ouvrant sur une grande terrasse filante, mirador des éclats de vie et des gens qui passent. Partout dans le lieu les traces de plusieurs temps passés se présentent et s’entremêlent.

L’histoire révélée par l’intervention architecturale a guidé le travail de l’agence. L’énumération précise des éléments de modénatures et des matérialités a permis de générer la grille chromatique de l’espace, comme un camaïeu de beiges grisés réchauffés par la chaleur vivante du chêne.

Des mobiliers designés sur mesure pour chaque espace rythment les envies de modernités sans jamais prendre la place principale : ils mettent en lumière l’ambiance feutrée et accueillent la vie active, la décoration, les diners en famille et entre amis. Au fil des pièces, les matières se déclinent du tonique bois de chêne huilé aux dalles de travertin domestiques.

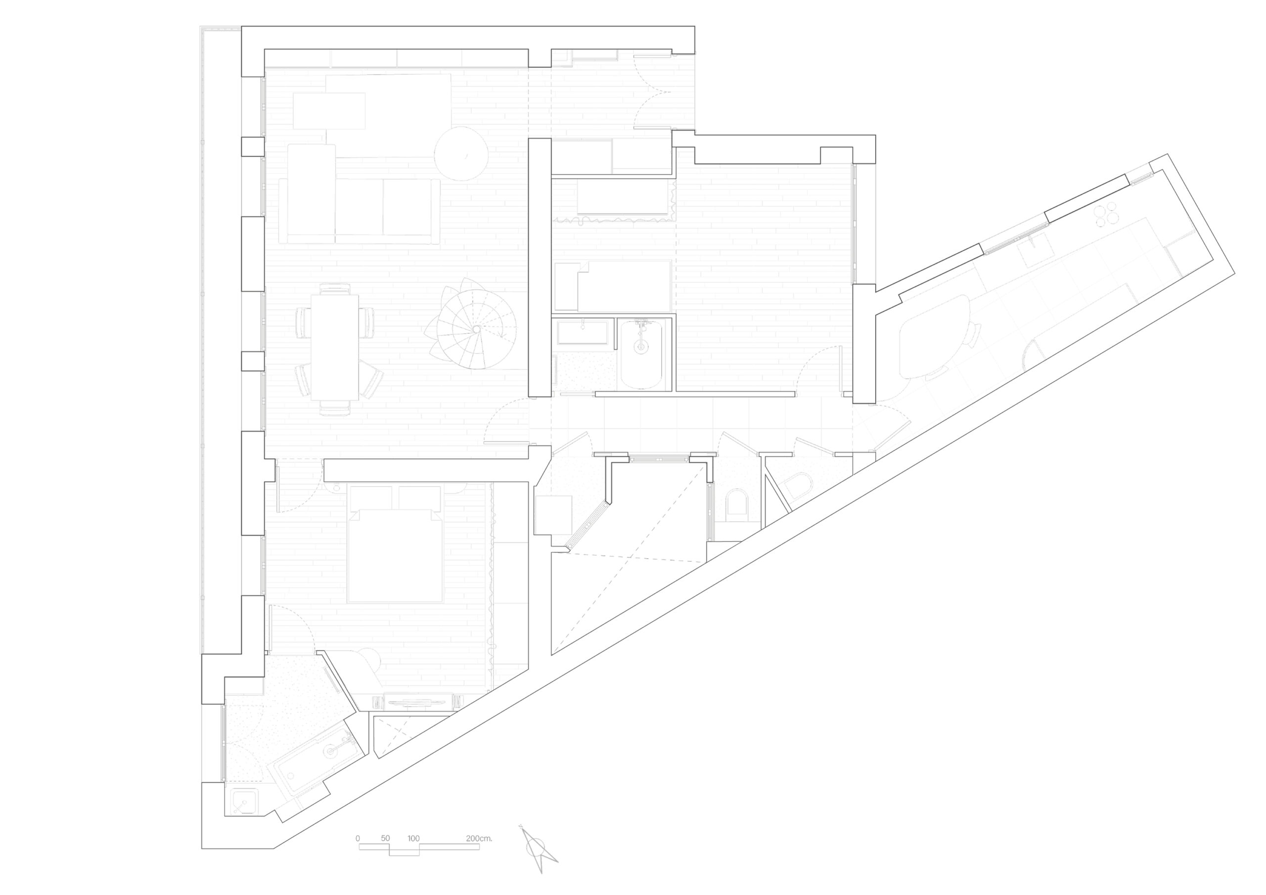
Comme dans une maison de campagne, la cuisine est le point névralgique de l’appartement. Isolée et étriquée dans sa configuration initiale, aujourd’hui, elle accueille les petits déjeuners autour de la table en terrazzo de pleine masse. Au niveau bas, les plafonds ont été laissé libres de hauteur et d’habillage, conservant le dialogue avec les modénatures passées. Aucun appareillage ni aucun luminaire ne vient perturber la pureté de la moulure. Les cloisonnements nouvellement créés dialoguent avec ces dimensions et par des jeux de retombées, créent une comptine mélodieuse entre le passé et le vivant.

commande
Privée
type
Rénovation d'un appartement Haussmannien
mission
Maîtrise d'œuvre complète et design de mobiliers
localisation
Paris (FR)
surface
114 m2
coût
160 k€HT
année
2021
équipe projet
Maud Laronze architecte + Iris Jacquard
crédits photographies
Jean-Baptiste Thiriet

Voir les plans