Auber

L’extension s’inscrit dans la continuité d’une maison traditionnelle de ville d’Aubervilliers, dont la façade en brique modénaturée constitue le caractère patrimonial. Le projet adopte une posture respectueuse : il révèle les qualités existantes plutôt que de les concurrencer. L’architecture originelle conserve sa présence, tandis que l’extension, plus discrète, à l’arrière de la parcelle, s’appuie sur un langage contemporain et épuré. Ce dialogue entre l’ancien et le nouveau renforce la lecture du bâti : la brique expressive et rythmée de la façade devient l’ancrage identitaire, tandis que l’extension vient prolonger les usages et ouvrir la maison vers l’espace extérieur regagné.

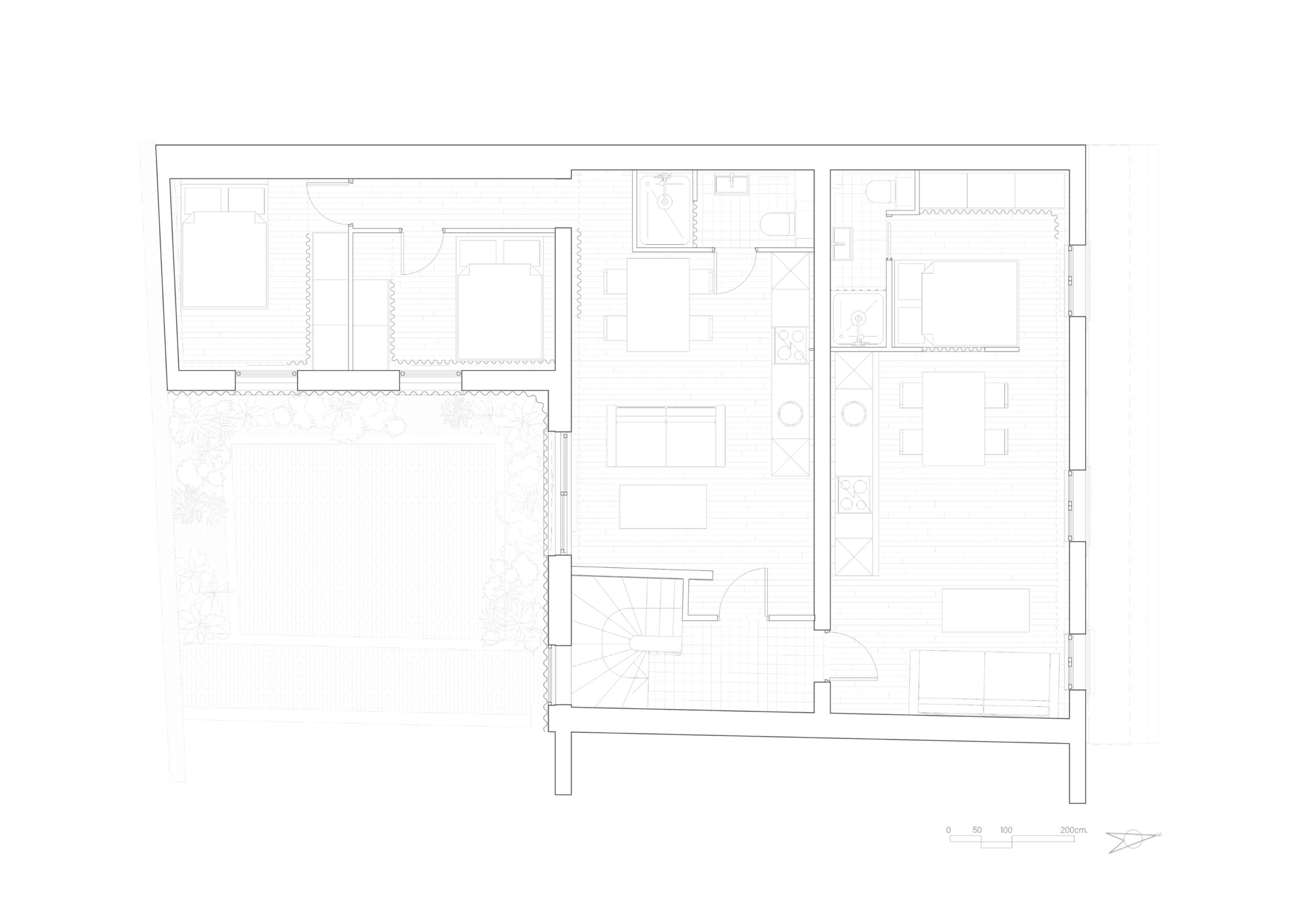
La cour à l’arrière, autrefois un espace résiduel, devient un véritable lieu de respiration. Elle est habillée d’un parement en tôles ondulées, dont les mouvements légers font écho aux ondulations des rideaux traités à l’intérieur de la maison. Ce motif commun crée un fil narratif entre les espaces, une manière de prolonger la sensation de douceur et de fluidité du dedans vers le dehors. De la même manière, les jeux de damiers de carrelage résonnent d’un espace à l’autre. Les reflets changeants au fil de la journée de la tôle et de la discrète plinthe extérieure animent la cour et transforment ce nouvel entre-deux en une extension vivante de l’habitat, à la fois intime, graphique et résolument urbaine.

commande
Privée
type
Rénovation et extension d'une maison de ville
mission
Mission de maitrise d'œuvre partielle + conformité architecturale
localisation
Aubervilliers (FR)
surface
150 m2
coût
280 k€HT
année
2022
équipe
Maud Laronze architecte + Acte Deux Studio (designers mandataire)
crédits photographies
Hugo L'Ahelec

Voir les plans